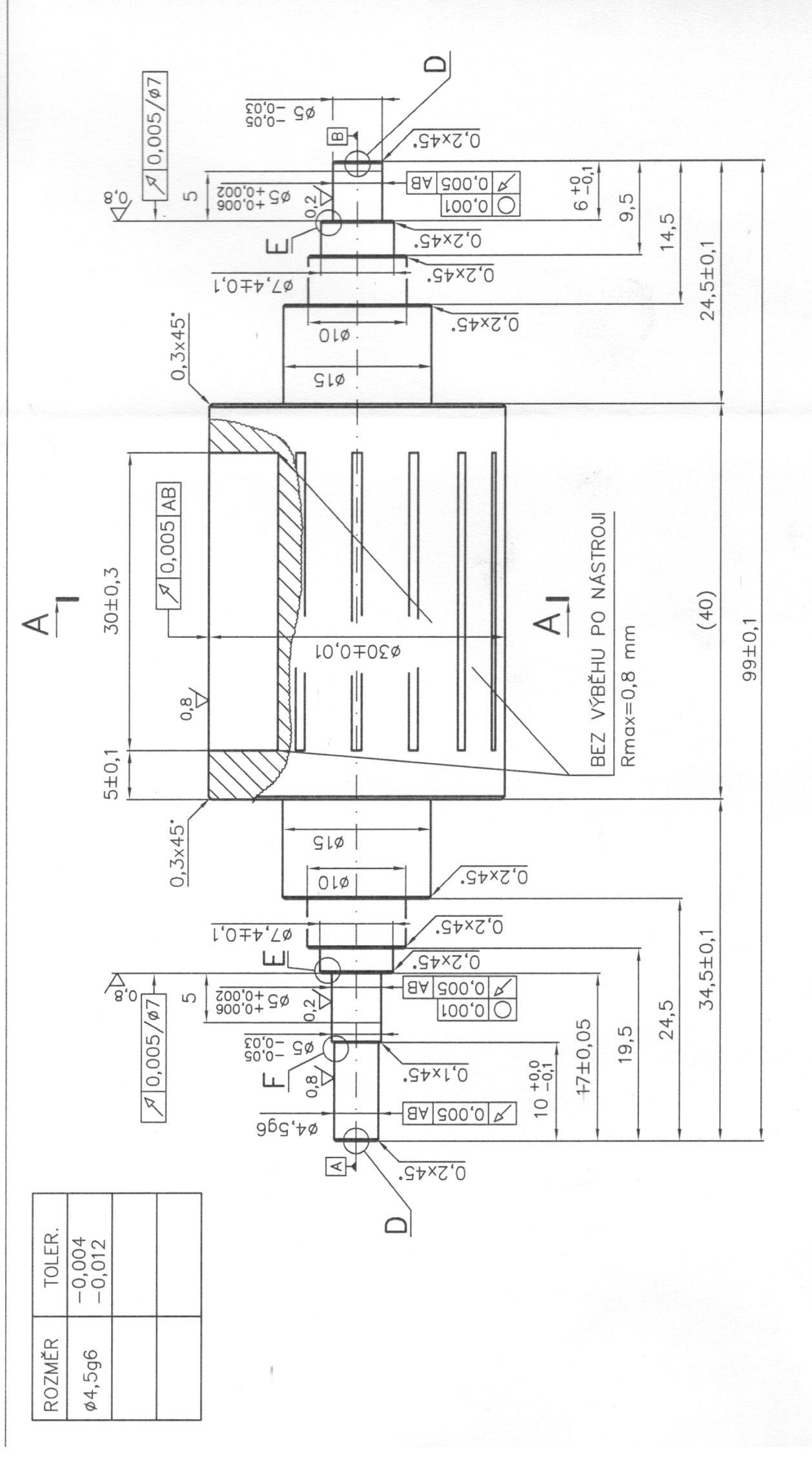
Potrebujem vyrobit 2 ks hridelek s drazkami viz priloha. Pripadne odchylky vyroby prosim upresnit. Prosim i o nabidku ceny pro 2 ks.
Predem dekuji za zaslani nabidky. Hridel se bude tocit 180.000.
Drazky 1 mm
Pravidla fóra
Toto forum vyzaduje schvaleni prispevku moderatorem.
Toto forum vyzaduje schvaleni prispevku moderatorem.
-
Polesovsky
- Příspěvky: 536
- Registrován: 28. 5. 2011, 9:30
- Bydliště: Brno
Naposledy upravil(a) Polesovsky dne 5. 10. 2020, 11:39, celkem upraveno 1 x.
-
nellospeed
- Příspěvky: 218
- Registrován: 14. 3. 2018, 4:52
Zajímalo by mě jak tohle vyrobit, jestli na nějaké hloubičce??
Jednoduše, rotor oddělit od hřídele, rozdělit ho na 3 části - středová část rotoru s drážkami vyrobenými na drátovce + 2 krajní podložky a to celé pak nalisovat na hřídel, celé to pak osoustružit a hotovo
-
Polesovsky
- Příspěvky: 536
- Registrován: 28. 5. 2011, 9:30
- Bydliště: Brno
Tomasi blbe. Musi to byt z jednoho kusu.Tomas999 píše: ↑3. 10. 2020, 7:48Jednoduše, rotor oddělit od hřídele, rozdělit ho na 3 části - středová část rotoru s drážkami vyrobenými na drátovce + 2 krajní podložky a to celé pak nalisovat na hřídel, celé to pak osoustružit a hotovoSkoro to vypadá jako rotor lamelového pneumotoru, ale tam jdou drážky až do kraje rotoru ...
Zatim nejlepsi nabidka - elektroerozni vrtacka pro hrub a klasicka hloubicka dohloubit. Cena zatim nejprijatelnejsi 33 tisic za 2 ks. Nejhorsi cena 81 tisic za jeden kus hloubeni.
-
jergus.balaz
- Příspěvky: 1745
- Registrován: 24. 6. 2020, 8:41
- Kontaktovat uživatele:
Tak za tých 33 tis / 2ks to treba čím skôr objednať. Dotyčný pochybujem že vie do čoho ide.Polesovsky píše: ↑5. 10. 2020, 11:36Cena zatim nejprijatelnejsi 33 tisic za 2 ks. Nejhorsi cena 81 tisic za jeden kus hloubeni.
BalazKovo.sk
Za těch 33 tisíc je to zhruba 1000Kč na díru. Kolik bude třeba elektrod? Jedna hrubovačka a jedna dokončovačka a vydrží tak 4 díry? To jenom výroba elektrod ukousne možná 8000Kč. A jedna díra se nejspíš za hodinu nevyjiskří. Ale garážník by to tak nepočítal. Mě by třeba výdělek 33 000Kč za týden nebo i 14 dní připadal dobrej.
-
Polesovsky
- Příspěvky: 536
- Registrován: 28. 5. 2011, 9:30
- Bydliště: Brno
Elektroerozni vrtackou vyhrubovat a na jiskricce dodelat. Cenu nabidl technolog (akciova spolecnost s ceskym majitelem) co ma super propracovane tabulky v excelu.bobik píše: ↑5. 10. 2020, 8:41 Za těch 33 tisíc je to zhruba 1000Kč na díru. Kolik bude třeba elektrod? Jedna hrubovačka a jedna dokončovačka a vydrží tak 4 díry? To jenom výroba elektrod ukousne možná 8000Kč. A jedna díra se nejspíš za hodinu nevyjiskří. Ale garážník by to tak nepočítal. Mě by třeba výdělek 33 000Kč za týden nebo i 14 dní připadal dobrej.