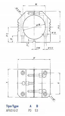
Vřeteno ELTE AF60 6/2 RR
To dává rozhodně smysl, díky. Ale ta moje pravá varianta (levou už jsem zavrhl) je co se masa i toho, co píšeš teď, týče celkem v pohodě, ne?
mimooborová naplavenina • kolowratský zázrak™ • NPS • GCU • HirthCalc • ncDP.ino
- Francotirador
- Příspěvky: 1172
- Registrován: 27. 7. 2010, 8:04
Ale jo, já jen nemám rád (vizuálně) když hlava imbusu není zapuštěná po celém obvodu (působí to na mě dojmem, nejdřív řež potom měř) a za druhé mi přijde že jsi s dírama pro hlavy šroubů až příliš těsně vývrtu objímky - při sebemenším uhnutí vrtáku narušíš jeho plochu (u varianty kdy jsou v blízkosti vývrtu díry o průměru pro dřík šroubu tedy menším pak mezi vývrtem a dírou nějaké maso zbyde).
soustruh: TOS MN80A; obrážečka: TOS MS200N
frézka: klon Sieg X2; ostřička: Beiping PP-U3
frézka: klon Sieg X2; ostřička: Beiping PP-U3
Aha. Teď koukám, že standardní záhlubník pro M4 imbus má průměr 8mm, já tam mám nakresleno 7.5mm, takže na plochu by se to v tom jednom místě dostalo téměř určitě. Originální pouzdro se zrovna s tímto mimochodem taky nemaže, ale uznávám, že je to trochu něco jinýho 
mimooborová naplavenina • kolowratský zázrak™ • NPS • GCU • HirthCalc • ncDP.ino
Nechávám to širší, abych k tomu případně mohl něco montovat, ale ještě uvidim. Napadlo mě, když to stahnu nepřitažený k Zku, prohne se to hlavně dole (nejslabší místo) a udělá to na dosedací ploše oblouk, na druhou stranu je to asi zanedbatelný (origo držák je na tom myslim stejně), zvlášť u mýho stroje.. Ty M4 imbusy jsou dlouhý 65mm, sežene se to jakš takš normálně (delší si můžu zkrátit, pokud je třeba 70 standardnější)?
Opět dík za názor, T.
Opět dík za názor, T.
Naposledy upravil(a) Thomeeque dne 8. 12. 2016, 10:36, celkem upraveno 2 x.
mimooborová naplavenina • kolowratský zázrak™ • NPS • GCU • HirthCalc • ncDP.ino
- Zdenek Valter
- Příspěvky: 5458
- Registrován: 9. 1. 2009, 5:16
- Bydliště: Ústí n. L.
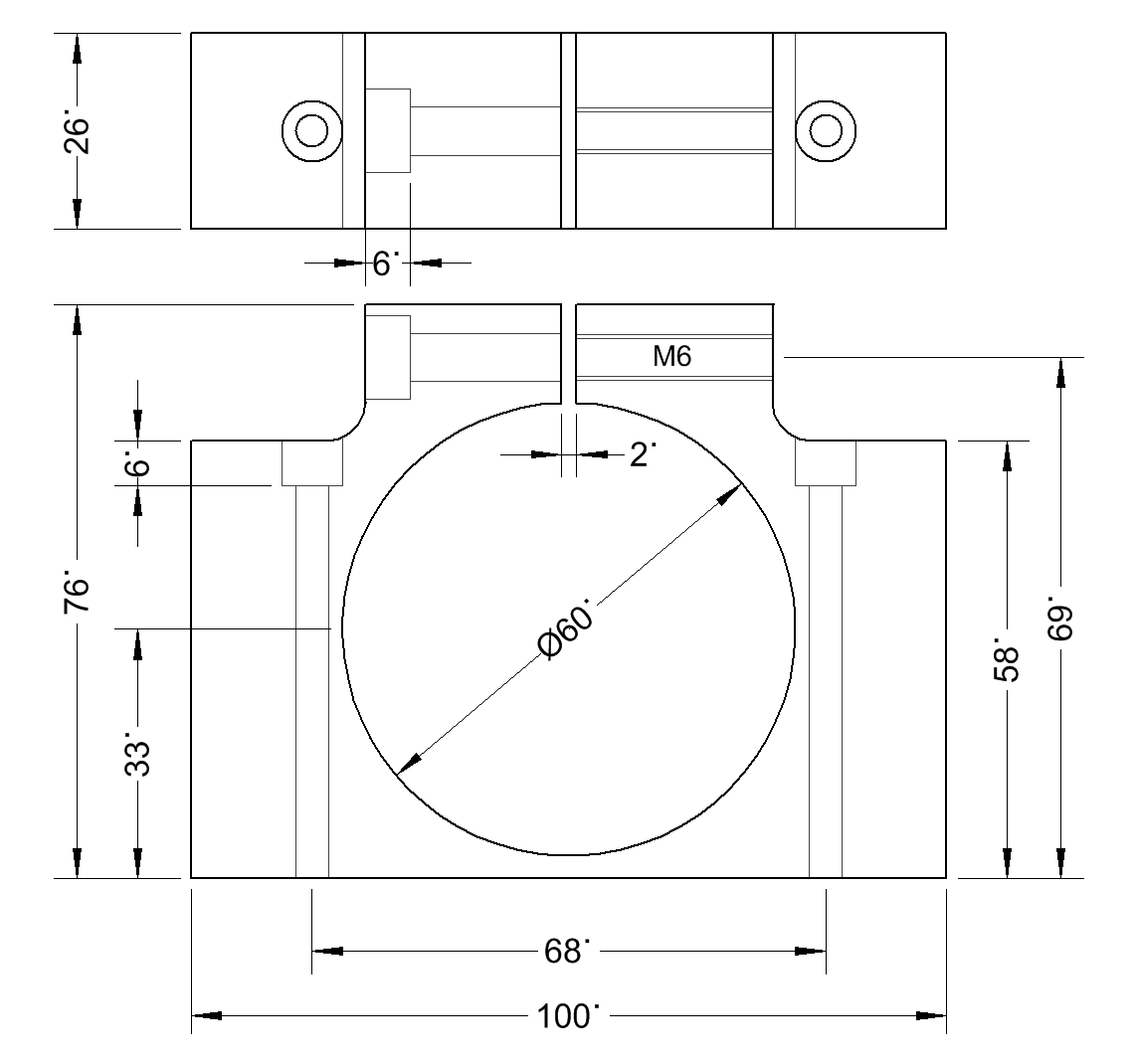
Taková kacířská - nebylo by lepší ten držák udělat nějak takhle?
- Přílohy
-
- drzak vretene.png (6.46 KiB) Zobrazeno 6711 x
Hobbík - obráběč i 3D tiskař začátečník - strojní park je konečně instalován
- Francotirador
- Příspěvky: 1172
- Registrován: 27. 7. 2010, 8:04
Úplně běžně asi v nabídce nebudou. Dle ČSN 02 1143 je pro M4 závit rozsah délek dříku 6 až 50 mm, a dle nové ČSN EN ISO 4762 (DIN 912) je normální / jmenovitá délka dříku dokonce jen 6 až 40 mm.Thomeeque píše:…Ty M4 imbusy jsou dlouhý 65mm, sežene se to jakš takš normálně (delší si můžu zkrátit, pokud je třeba 70 standardnější)?…
Ale nevěš hlavu, kdybys je náhodou nesehnal tak holt zaměstnáš mazlíka a uděláš si délky jaké chceš.
soustruh: TOS MN80A; obrážečka: TOS MS200N
frézka: klon Sieg X2; ostřička: Beiping PP-U3
frézka: klon Sieg X2; ostřička: Beiping PP-U3
- Francotirador
- Příspěvky: 1172
- Registrován: 27. 7. 2010, 8:04
Jejda, to už jsem někde viděl - že by o stránku dříve?Zdenek Valter píše:Taková kacířská - nebylo by lepší ten držák udělat nějak takhle?
Strana 2 http://www.c-n-c.cz/posting.php?mode=qu ... 7#pr232477" onclick="window.open(this.href);return false;
soustruh: TOS MN80A; obrážečka: TOS MS200N
frézka: klon Sieg X2; ostřička: Beiping PP-U3
frézka: klon Sieg X2; ostřička: Beiping PP-U3
- robokop
- Site Admin
- Příspěvky: 23266
- Registrován: 10. 7. 2006, 12:12
- Bydliště: Praha
- Kontaktovat uživatele:
jestli myslis tohle
tak z hlediska kvalitniho upnuti musis tu diru pro vreteno udelat pokudmozno nejpresneji s prumerem vretena
ma to dve vyhody
vpodstate zadna deformace objimky tj. i jejich dosedacek na Z
plne kruhovy styk s plastem vretena
tak z hlediska kvalitniho upnuti musis tu diru pro vreteno udelat pokudmozno nejpresneji s prumerem vretena
ma to dve vyhody
vpodstate zadna deformace objimky tj. i jejich dosedacek na Z
plne kruhovy styk s plastem vretena
Vsechna prava na chyby vyhrazena (E)
Tady mají M4x70 a někde jsem viděl i 65, které nebyly skladem, rozhodim sítě (na mazlikovi bych neuměl ten imbus šestihran, který bych rád).Francotirador píše:Úplně běžně asi v nabídce nebudou. Dle ČSN 02 1143 je pro M4 závit rozsah délek dříku 6 až 50 mm, a dle nové ČSN EN ISO 4762 (DIN 912) je normální / jmenovitá délka dříku dokonce jen 6 až 40 mm.Thomeeque píše:…Ty M4 imbusy jsou dlouhý 65mm, sežene se to jakš takš normálně (delší si můžu zkrátit, pokud je třeba 70 standardnější)?…
Ale nevěš hlavu, kdybys je náhodou nesehnal tak holt zaměstnáš mazlíka a uděláš si délky jaké chceš.
Ještě přemýšlím, jak moc troufalé je jít s celkovou délkou upnutí ze souvislých cca 69mm u originálního pouzdra na cca 2x25mm (z hlediska potenciání deformace těla vřetena a potřebné pevnosti upnutí). Mohl bych je asi nechat udělat širší případně bych mohl mít tři (střední by se upínal M5 imbusy), ale obojímu bych se rád vyhnul.. tělo vřetena působí dost bytelně, takže si myslím, že ho to nerozhodí a 2x25mm by taky mělo držet fest, ale to jsou z mojí strany jen dojmy.
Dík, T.
EDIT: @robokop: rozumim, dík.
Jestli jsi to myslel tak, že by i ze spoda mělo být víc "masa", tak to asi ano, ale já chci být osou vřetena co nejblíž vozíku kvůli zbytku stroje, je to kompromis. Teď jsou tam 3mm, instinktivně jsem si netroufl jít nížZdenek Valter píše:Taková kacířská - nebylo by lepší ten držák udělat nějak takhle?
mimooborová naplavenina • kolowratský zázrak™ • NPS • GCU • HirthCalc • ncDP.ino
- Francotirador
- Příspěvky: 1172
- Registrován: 27. 7. 2010, 8:04
Podobně jsem dělal držák na fortunku:robokop píše:jestli myslis tohle
tak z hlediska kvalitniho upnuti musis tu diru pro vreteno udelat pokudmozno nejpresneji s prumerem vretena
ma to dve vyhody
vpodstate zadna deformace objimky tj. i jejich dosedacek na Z
plne kruhovy styk s plastem vretena
- Všechny plochy ofrézované na čisto kromě dosedací, ta ponechána s přídavkem.
- Vývrt soustružený (v nezávislé čtyřčelisťovce) také s přídavkem.
- Proříznuta drážka nejtenčí pilovou frézou co jsem našel, vyvrtány díry pro šrouby a vyřezán závit.
- Do drážky prázdné objímky vložen cigaretový papírek a stažena šroubem (strojařštější by asi byla 2 setinová spároměrka).
- Objímka opět vycentrována ve čtyřčelisťovce a soustružen vývrt napřesno dle skutečného změřeného průměru fortunky.
- Poté fortunka upnuta do objímky (již bez papírku
Ta šaškárna s přídavkem a egalizací dosedací plochy by se asi možná dělat ani nemusela - já to vlastně tenkrát ani nedělal z důvodu srovnání deformace vzniklé stažením objímky (to byl jen vedlejší efekt), ale kvůli dodržení osové výšky objímky tj. eliminovat zbytkovou chybu centrování ve čtyřpakně - hledat na každé ploše čtyřhranu minimum na hodinkách a při každým pootočení navíc ještě vyjíždět kvůli malému zdvihu hodinek (stojánek na suportu) nebylo zrovna komfortní, tak jsem přesnosti centrování moc nedůvěřoval.
soustruh: TOS MN80A; obrážečka: TOS MS200N
frézka: klon Sieg X2; ostřička: Beiping PP-U3
frézka: klon Sieg X2; ostřička: Beiping PP-U3
- Francotirador
- Příspěvky: 1172
- Registrován: 27. 7. 2010, 8:04
No vida tak to máš vyhráno, jen uklafneš 5 mm a je to.Thomeeque píše:…Tady mají M4x70 a …
To mi připomnělo, že jsem cca před měsícem o víkendu ihned potřeboval vratový šrouby, v Bauhausu (nebo to byl Hornbach
Je to asi stejné jako filozofie překupníků, které moc nezajímá co vlastně na e-shopech nabízí. Např. když jsem vybíral kompresor, tak jsem na stránkách, kde ho nabízeli nejlevněji, našel jiný celkový rozměry než v manuálu staženém z jiných stránek. Na dotaz kde je chyba, jestli skutečně jde o daný model jsem se dozvěděl, že jsou prý vlastně správně i ty rozměry. On je totiž nezajímá, jak je velký kompresor, takže dávají do specifikace jak je velká krabice (a mám to chápat jako celkové rozměry zboží tj. logicky i s obalem)
soustruh: TOS MN80A; obrážečka: TOS MS200N
frézka: klon Sieg X2; ostřička: Beiping PP-U3
frézka: klon Sieg X2; ostřička: Beiping PP-U3
- Zdenek Valter
- Příspěvky: 5458
- Registrován: 9. 1. 2009, 5:16
- Bydliště: Ústí n. L.
jo jo díky.Francotirador píše:Jejda, to už jsem někde viděl - že by o stránku dříve?Zdenek Valter píše:Taková kacířská - nebylo by lepší ten držák udělat nějak takhle?![]()
_
![]()
![]()
Strana 2 http://www.c-n-c.cz/posting.php?mode=qu ... 7#pr232477" onclick="window.open(this.href);return false;
Hobbík - obráběč i 3D tiskař začátečník - strojní park je konečně instalován
co kupuju šrouby tak klasické a Imbus mají délku po hlavu (tedy jen ta válcová část) a uváděná délka zapuštěných je pak včetně hlavy. - chápu to jako délku ve vztahu k síle spojovaného materiálu
Víťa - BF20 - upraveno na CNC + Mach3 + SS, soustruh CJM250, MK3 Průša, ostřička nástrojů
- Francotirador
- Příspěvky: 1172
- Registrován: 27. 7. 2010, 8:04
Ano, chápeš to správně a délka je takto kótována v normách. Já chtěl jen poukázat, že supermarkety jsou schopný si označování zjednodušit a popis na cenovkách nemusí odpovídat (pak si zákazník odnese domů šrouby kratší, než si důvěřivě myslí, že kupuje).chb píše:co kupuju šrouby tak klasické a Imbus mají délku po hlavu (tedy jen ta válcová část) a uváděná délka zapuštěných je pak včetně hlavy. - chápu to jako délku ve vztahu k síle spojovaného materiálu
Naposledy upravil(a) Francotirador dne 9. 12. 2016, 7:22, celkem upraveno 1 x.
soustruh: TOS MN80A; obrážečka: TOS MS200N
frézka: klon Sieg X2; ostřička: Beiping PP-U3
frézka: klon Sieg X2; ostřička: Beiping PP-U3