Stránka 1 z 1
Profil "Účko 50" (zrušeno)
Napsal: 27. 2. 2024, 9:39
od Thomeeque
Ahoj,
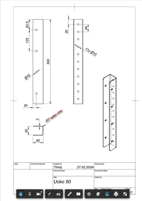
prosil bych nacenit 8 kusů, výkres
zde (mohu dodat rozložený tvar).

- co vypadá symetricky, je symetrické :)
Materiál snadno svařitelná ocel ("bláto"). Tolerance zemědělské, většina rozměrů přizpůsobitelná (kótu "R7 nebo více" jsem přehodnotil, není nutné dodržet, jen mi prosím napište, kolik to cca bude). Profil by přišel přes zadní otvory přivařit na sloupek a svíral by dvě 250x50 fošny nad sebou. Zaoblení rohů lze vypustit, pokud by to byla komplikace.
Potřeboval bych to ideálně do příští středy, Praha a okolí (příp. poslat). Zatím stačí hrubý nástřel a info, jestli by se to řezalo na laseru, pro ten bych to případně asi ještě mírně poladil (tvary některých děr). Jestli chcete model, můžu dodat STP.
Dík, T.
Re: Profil "Účko 50"
Napsal: 27. 2. 2024, 5:03
od Thomeeque
Trochu jsem to zjednodušil..
Re: Profil "Účko 50"
Napsal: 27. 2. 2024, 5:18
od Charon
Proc to chces vyrabet, kdyz to jde koupit hotove
https://www.kondor.cz/jekl-u-50x50x50x3/d-78801/
Re: Profil "Účko 50"
Napsal: 27. 2. 2024, 5:29
od Thomeeque
1. do toho těžko narvu 50mm fošnu, 2. bych celkem ocenil všechny další úpravy, protože na to nebudu mít moc času. Potenciální plán B, pokud se s nikým nedohodnu, je
https://www.kondor.cz/jekl-u-60x60x60x3/d-78899/, ale to bych si ještě rozmyslel.
Re: Profil "Účko 50"
Napsal: 27. 2. 2024, 5:46
od Charon
Ad1: Ja ti to taky dal jako inspiraci, vybirat rozmer za tebe nebudu
Ad2: No taky si muzes koupit truhlik hotovej

Re: Profil "Účko 50"
Napsal: 27. 2. 2024, 5:50
od picom
Musí tam být U ? Musí tam být trubka ?
Dělal jsem záhon z cetris desek a dal jsem zvenku přes roh pouze L z dibond desky (plech jsem neměl) a skrz nerezové šrouby M5. Doufám že mě to přežije.
Re: Profil "Účko 50"
Napsal: 27. 2. 2024, 10:48
od Thomeeque
Máš to hezké, díky za inspiraci. Cetris je asi dobrý matroš, fošny by takto smontované myslím dlouho nedržely.
picom píše: ↑27. 2. 2024, 5:50
Musí tam být U ? Musí tam být trubka ?
Sloupky tam chceme. Napadají mě i jiná řešení, ale toto se mi momentálně líbí nejvíc. Ještě tomu chvíli dám..
Re: Profil "Účko 50"
Napsal: 28. 2. 2024, 7:55
od picom
Příště bych udělal jednu stranu vyndavací bez použití nástrojů, aby byl snadnější přístup při obnově spodních vrstev (za dva roky zmizí)
Desky cetris hobby (300mm šíře) se daly před pár roky koupit u výrobce za 10Kč kus. Při koupi celého kamionu byly za 1Kč
Kdo má možnost dopravy z Hranic, tak tam pořád nakoupí mnohem levněji než ve stavebninách.
Re: Profil "Účko 50"
Napsal: 28. 2. 2024, 4:11
od Thomeeque
picom píše: ↑28. 2. 2024, 7:55
Příště bych udělal jednu stranu vyndavací bez použití nástrojů, aby byl snadnější přístup při obnově spodních vrstev (za dva roky zmizí)
U nás budou za dva roky nejspíš potřeba opět vyměnit desky
picom píše: ↑28. 2. 2024, 7:55
Desky cetris hobby (300mm šíře) se daly před pár roky koupit u výrobce za 10Kč kus. Při koupi celého kamionu byly za 1Kč
Kdo má možnost dopravy z Hranic, tak tam pořád nakoupí mnohem levněji než ve stavebninách.
Dík za tip! Třeba využijeme příště
T.