Drátorez? Bruska? Dopyt na výpomoc...

Požadavky na výrobu dílů - poptávkové fórum
Pravidla fóra
Toto forum vyzaduje schvaleni prispevku moderatorem.
Odpovědět
magic_touch
Příspěvky: 94
Registrován: 25. 4. 2016, 5:20

6. 11. 2024, 4:55

Díky všetkým, čo sa ozvali, zadané. možno vymazať.
Přílohy
dratorez.jpg
Naposledy upravil(a) magic_touch dne 10. 11. 2024, 6:47, celkem upraveno 1 x.
KOVOFORM-CT
Příspěvky: 4
Registrován: 7. 11. 2024, 10:49

8. 11. 2024, 11:33

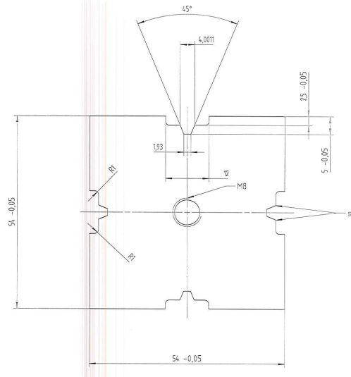
magic_touch píše: 6. 11. 2024, 4:55 Ahoj potreboval by som výpomoc s týmto dielom.
Myslím, že by to bolo vhodné na rezanie drôtom. Materiál nástrojovka, kalená. Presnú akosť ešte musím zistiť.
Poprosím o nástrel ceny pre 4ks. Hrúbka celého je 20mm. Daňový doklad by bol fajn. Lokalita mi je úplne ukradnutá, hlavne nech je to presné.
dratorez.jpg

Dobrý den,

Pokud stále potřebujete tak nebude problém.
magic_touch
Příspěvky: 94
Registrován: 25. 4. 2016, 5:20

10. 11. 2024, 6:47

Díky všetkým, čo sa ozvali, zadané.
Odpovědět

Zpět na „Potřebuji vyrobit - vypomoc pri vyrobe“